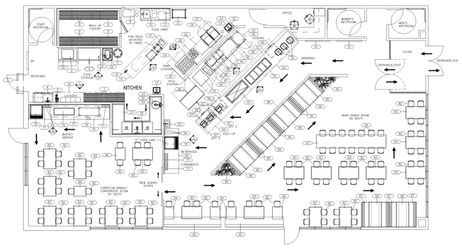
Taco Maya Mexican Grill in West Chester, PA, features authentic Mexican cuisine in a fun and friendly cantina-style environment. Fresh food is prepared right in front of guests, combining vibrant flavors with warm, attentive service.
The 3,500-square-foot restaurant previously housed a seafood sandwich shop and was completely renovated to create an authentic, themed Mexican quick-serve restaurant (QSR). The $450,000 renovation was completed in just four months.



